Aussegnungshalle
Ulm

Projekte     

 

Standort

Stuttgarter Straße 166, Ulm

 

Auftraggeber

Stadt Ulm

 

bearbeitete Leistungsphasen

5-7 (HOAI)

 

Ausführungszeit

2011-2015

 

Architekt

Mohn Architekt, Ulm

 

 

Projektdetails

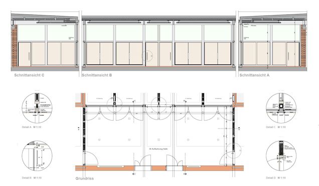
Friedhof Ulm
Neubau einer vorgelagerten Säulenhalle
Sanierung der Aussegnungshalle

bildbild