Dachgeschoßwohnungen
München

projekte     

 

Standort

Konradinstraße, München

 

Auftraggeber

privat

 

bearbeitete Leistungsphasen

1-8 (HOAI)

 

Ausführungszeit

2007-2009

 

Architekt

Thomas Steiner, München

 

 

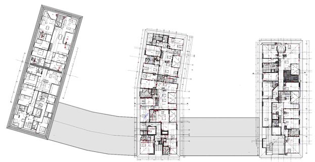
Projektdetails

Abbruch und Neuerrichtung von 3 Dachstühlen eines ehemaligen Altenheimes.
Ausbau der Dachstühle zu Wohnungen mit Galerien und Dachterrassen

bildbild