Einfamilienhaus
Ulm

Projekte     

 

Standort

James Fitzmaurice Weg, Ulm

 

Auftraggeber

privat

 

bearbeitete Leistungsphasen

1-9 (HOAI)

 

Ausführungszeit

2004-2005

 

Architekt

Thomas Steiner, München

 

 

Projektdetails

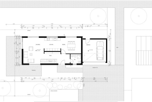
Neubau eines Einfamilienhauses mit Doppelgarage
Niedrigenergiehaus mit Fernwärmeversorgung
Massivbauweise mit WDVS

bildbild